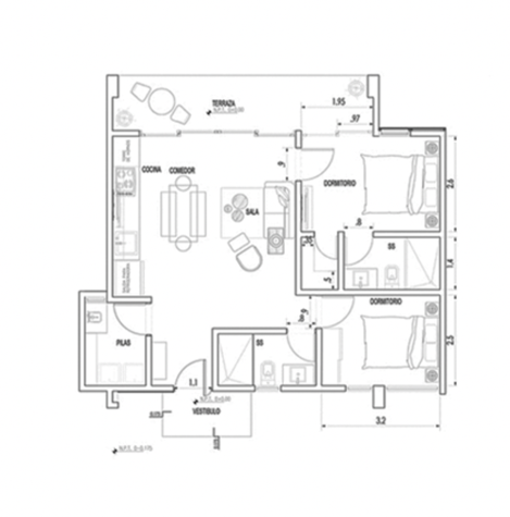
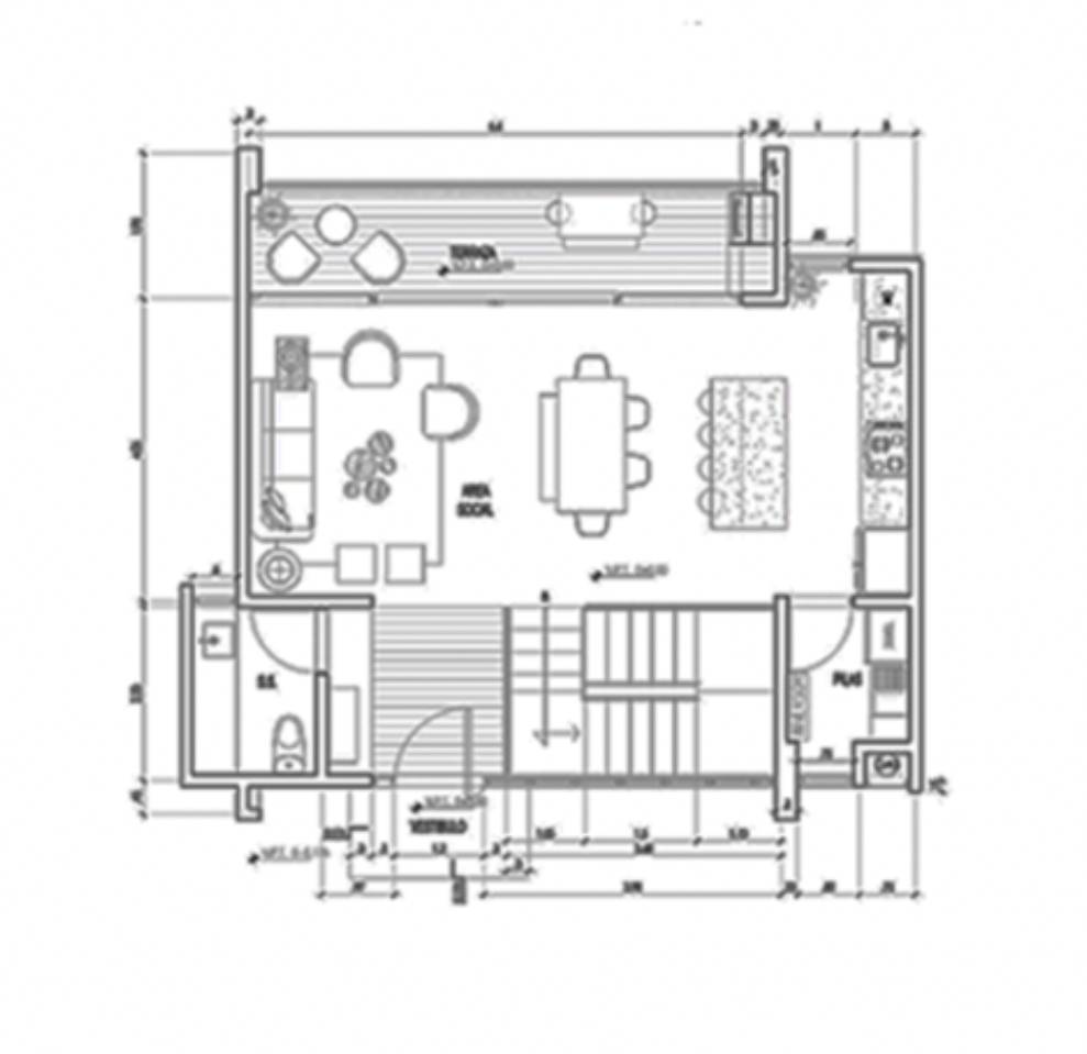
Apartamento tipo A
Dos plantas/151m2 + parqueo
Nuestro primer proyecto nace con el eje principal de conservación. Una propiedad ubicada en Playa Hermosa, Pacifico Central de Costa Rica, de 5,000m2 con árboles de muchos años que queríamos conservar y además generar más atracción de especies de animales nativos, tal y como las lapas, tucanes, pericos, pavas negra, monos.
De esta forma acomodamos las casas en la propiedad con la intención de no talar árboles, estaban primero que nosotros y los debíamos de respetar. Además de la importancia para generar protección al sol, los vientos y las lluvias.
Las casas fueron diseñadas para tener vientos cruzados, mucha iluminación natural e integrar la naturaleza hacia adentro, una pared fría que funciona como un radiador que baja las temperaturas internas, energía solar para auto generar energía, pieles de madera que ayudan a proteger las casas pero que también las deja respirar.
Generamos un sentido de comunidad donde existe un espacio común para que los habitantes tengan puntos de encuentro, un parqueo común que hace que se puedan encontrar entre vecinos, una zona central como el corazón del proyecto que permite que existan las relaciones humanas en el día a día. Respetamos los valores de cada uno de los vecinos para que así pudiera existir una afinidad entre todos.
Vistas a la montaña que nos refrescan la estadía, pero dentro de una zona residencial que ya existía. Evitando la intervención de propiedades destinadas para la conservación.